Rachele Griego
505.690.9386
$350,000

$350,000
505.690.9386
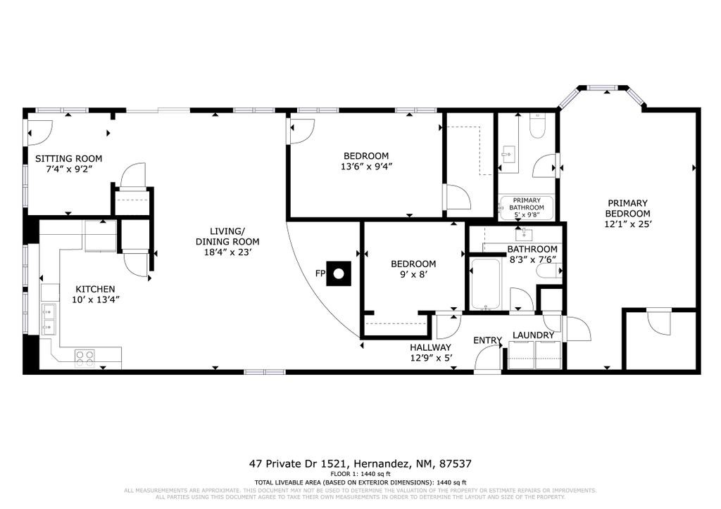
Manufactured home with a spacious addition on a permanent foundation, situated on .66 acres at the end of a private road and backing directly to BLM land for exceptional privacy and open space. This 3 bedroom, 2 bath home features an updated kitchen with a Bosch dishwasher (2 years old) and a large open concept living and dining area designed for comfortable everyday living. The tile in the kitchen and laundry area has been replaced, and new carpet has been installed in the main living area and hallway.Recent upgrades include a hot water heater (1.5 years old), a washer and dryer (3 years old), added Ethernet for enhanced connectivity, and a reverse osmosis system with water softener for improved water quality. The swamp cooler and septic tank were replaced when the home was purchased in 2022 and are newer as well. Natural gas service and community water provide efficiency and convenience.The property is fully fenced around the perimeter and includes a one car garage plus a large outbuilding ideal for a workshop, storage, or hobby space. Enjoy the outdoor adobe oven (horno), and mature fruit trees in this peaceful setting. A rare opportunity to own a home with direct access to public land while enjoying privacy, usable acreage, and thoughtful modern improvements.
Rachel Martin
Las Campanas Realty, LLC