Rachele Griego
505.690.9386
$15

$15
505.690.9386
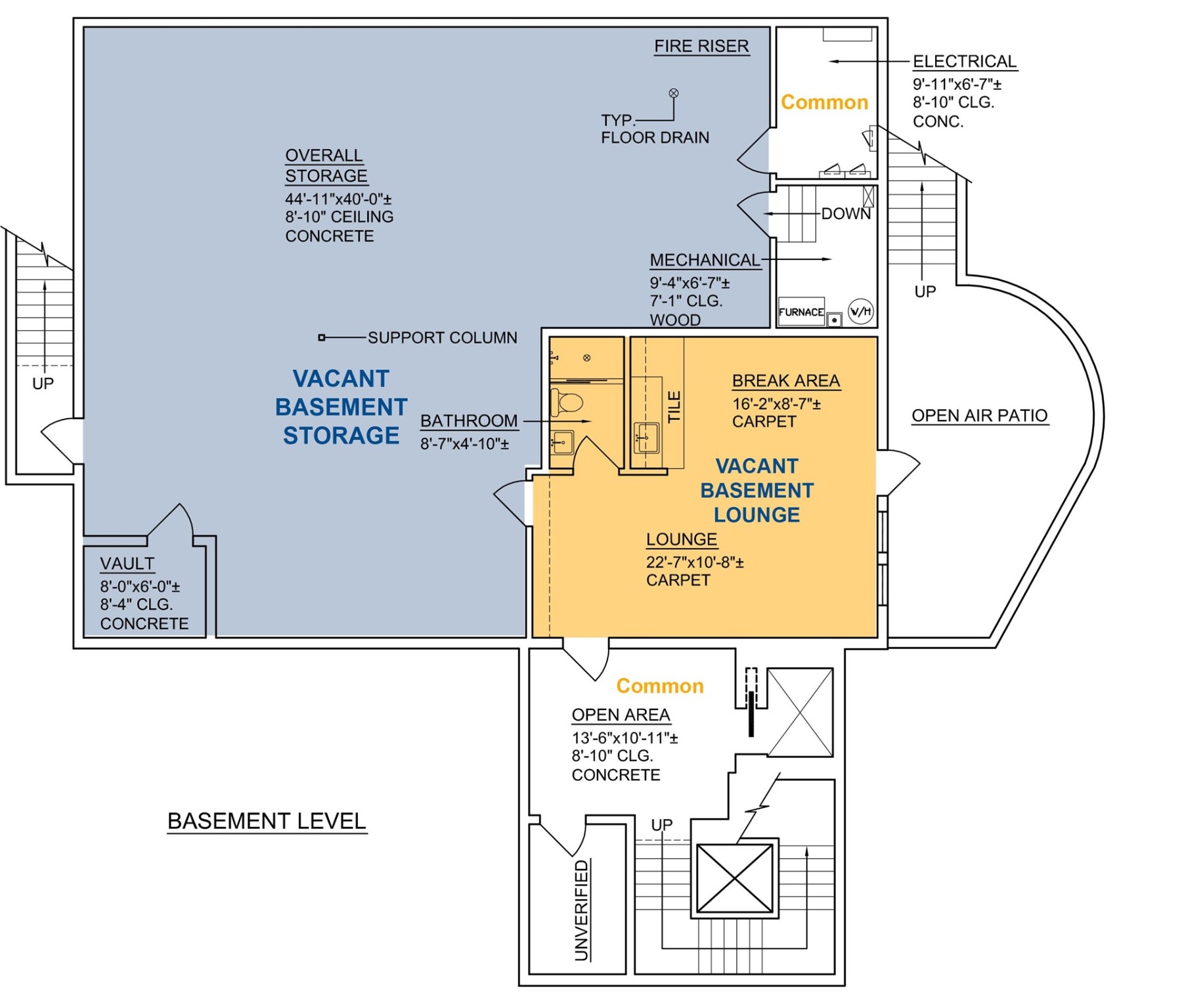
Premium ground floor office space and basement storage/lounge area for lease, offered triple net. Currently occupied by Catron Catron Glassman law offices. The Catron Building at 2006 Botulph Road is a well-located, two-story professional office property in the heart of Santa Fe's medical and business corridor. Offering 20,467 square feet on 0.90 acres, the building provides flexible suite configurations, excellent natural light, ADA-accessible restrooms, and elevator service. The property is ideal for medical, dental, behavioral health, administrative office, or professional services users. Currently, the building offers a balanced mix of leased suites and 11,323 RSF of vacancy, allowing versatile pathways for owner-users, investors, or businesses seeking a full-building HQ near Christus St. Vincent Hospital, St. Michael's Drive, and I-25. A fresh asphalt overlay, restriped 54-space parking lot, and mature landscaping make this an attractive and functional home for a wide range of professional uses. Zoning is C-1, permitting a variety of commercial and office applications. LOCATION: Situated just off St. Michael's Drive, this property offers seamless access to Santa Fe's medical hub, downtown, Hwy 285, and I-25. The immediate area includes medical clinics, law firms, financial services, and professional offices. The location serves both local residents and the region's robust healthcare community.
Tai Bixby
Real Estate Advisors, LLC